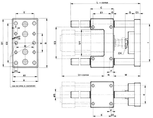
Unità di guida tipo U per cilindri ISO 6431

| ø CIL | A | A1 | B | B1 | C | C1 | D | E | E1 | E2 | E3 | F | F1 | G | H | I | L | L1 | M | N | O | O1 | S | CH | U1 |
| 32 | 48 | 45 | 100 | 90 | 48 | 12 | 6 | 32.5 | 32.5 | 78 | 58 | M6 | 6.5 | 20 | 31 | 74 | 106 | 94 | 54 | 17 | 7.8 | 7.8 | 12 | 13 | 48 |
| 40 | 56 | 50 | 106 | 105 | 58 | 12 | 6 | 38 | 38 | 84 | 64 | M6 | 6.5 | 22 | 36 | 80 | 117 | 105 | 55 | 21 | 10 | 10 | 12 | 15 | 54 |
| 50 | 66 | 60 | 125 | 124 | 59 | 15 | 6 | 46.5 | 46.5 | 100 | 80 | M8 | 9 | 23 | 45 | 96 | 129 | 106 | 68 | 25 | 6.3 | 6.3 | 16 | 21 | 67 |
| 63 | 76 | 70 | 132 | 125 | 76 | 15 | 6 | 56.5 | 56.5 | 105 | 95 | M8 | 9 | 23 | 45 | 104 | 146 | 121 | 68 | 25 | 9.8 | 9.8 | 16 | 21 | 76 |
| 80 | 98 | 90 | 165 | 155 | 90 | 18 | 6 | 72 | 50 | 130 | 130 | M10 | 11 | 30 | 56 | 130 | 170 | 128 | 78 | 34 | 20 | 9 | 20 | 27 | 97 |
| 100 | 118 | 110 | 185 | 175 | 110 | 18 | 6 | 89 | 70 | 150 | 150 | M10 | 11 | 30 | 56 | 150 | 190 | 138 | 78 | 39 | 20 | 10.5 | 20 | 27 | 117 |